
Kontaktdaten
-
NameHerr Ralf Baldinger
-
PositionGeschäftsführer
-
FirmaBadische Bodenwert GmbH
-
AnschriftPoststraße 6
79206 Breisach -
E-Mail
-
Telefon
Objektdaten
-
Objekt-IDBB 557
-
ObjekttypenBüro, Büro/Praxis
-
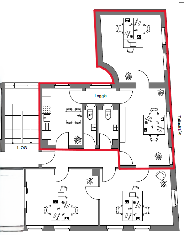
Adresse77652 Offenburg
Baden-Württemberg -
Etage1
-
Bürofläche ca.50 m²
-
Zimmer2
-
KücheEinbauküche
-
Zustandgepflegt
-
AusstattungStandard
-
BodenbelagFliesen, Stuhlrollenfeste Teppichfliesen, Laminat
-
Außenstellplatz1
-
Kaltmiete600,00 EUR
-
Nebenkosten200,00 EUR
-
Warmmiete800,00 EUR
Ausstattung / Merkmale
- ✓ Außenstellplatz
- ✓ Einbauküche
- ✓ Fliesenboden
- ✓ Gäste-WC
- ✓ Laminatboden
- ✓ Tageslichtbad
Energieausweis
-
Energieausweisnicht erforderlich
Objektbeschreibung
Entdecken Sie Ihr neues Büro in der charmanten Stadt Offenburg! Dieses attraktive Mietobjekt bietet eine praktische und kostengünstige Lösung für Ihr Unternehmen.
Hier sind die Highlights dieses Büros:
- Modernes und helles Arbeitsumfeld
- Ideal für Startups, Freiberufler und kleine Teams
- Möglichkeit zur Mitnutzung einer professionellen Kaffeemaschine.
- Zwei separate WC Räume im Objekt verfügbar.
- Nach Absprache Mitnutzung eines Scan- und Drucksystems möglich
Dieses Büro ist perfekt für diejenigen, die eine flexible und gemeinschaftsorientierte Arbeitsumgebung suchen. Die zentrale Lage in Offenburg bietet zudem eine hervorragende Anbindung an öffentliche Verkehrsmittel und ist nur einen kurzen Spaziergang von lokalen Geschäften und Restaurants entfernt.
Nutzen Sie diese Gelegenheit, um Ihr Unternehmen in einem dynamischen und unterstützenden Umfeld zu etablieren. Kontaktieren Sie uns noch heute für eine Besichtigung!
Lage
Offenburg, eine charmante Stadt im Herzen des Ortenaukreises, bietet eine ideale Mischung aus historischem Flair und modernem Komfort. Diese Immobilie befindet sich in einer der gefragtesten Wohnlagen der Stadt, nur wenige Gehminuten von der malerischen Altstadt entfernt. Hier genießen Sie die Ruhe eines ruhigen Wohnviertels, während alle Annehmlichkeiten des täglichen Lebens bequem erreichbar sind.
- **Zentrale Lage**: Die Immobilie liegt nur etwa 10 Gehminuten vom Stadtzentrum entfernt, wo Sie eine Vielzahl von Geschäften, Restaurants und Cafés finden.
- **Ausgezeichnete Verkehrsanbindung**: Der Bahnhof Offenburg ist nur wenige Minuten entfernt und bietet schnelle Verbindungen nach Straßburg, Karlsruhe und Freiburg. Die Autobahn A5 ist ebenfalls leicht erreichbar, was Pendlern ideale Bedingungen bietet.
- **Naherziehungseinrichtungen**: Mehrere Kitas, Grundschulen und weiterführende Schulen befinden sich in unmittelbarer Nähe, sodass Ihre Kinder optimal betreut sind.
- **Grünflächen und Parks**: Genießen Sie die Nähe zu schönen Parks und Naherholungsgebieten, wie dem Mühlenwegpark, ideal für Spaziergänge und Entspannung.
- **Medizinische Versorgung**: Zahlreiche Ärzte, Apotheken und das Klinikum Offenburg befinden sich in direkter Umgebung, sodass Sie stets gut versorgt sind.
Offenburg besticht durch seine hervorragende Infrastruktur und die hohe Lebensqualität, die es bietet. Diese Lage macht die Immobilie zu einer ausgezeichneten Wahl für Mieter, die Wert auf eine zentrale und doch ruhige Wohngegend legen.
Sie sehen gerade einen Platzhalterinhalt von Standard. Um auf den eigentlichen Inhalt zuzugreifen, klicken Sie auf den Button unten. Bitte beachten Sie, dass dabei Daten an Drittanbieter weitergegeben werden.
Weitere InformationenDie dargestellte Position der Immobilie ist nur eine ungefähre Angabe.
Kontaktdaten
-
NameHerr Ralf Baldinger
-
PositionGeschäftsführer
-
FirmaBadische Bodenwert GmbH
-
AnschriftPoststraße 6
79206 Breisach -
E-Mail
-
Telefon







